Wohnung zum Kauf in Berlin

2-Zimmer-Wohnung im Herzen von Berlin-Mitte – ruhig und zentral

399.000 €

Kaufpreis
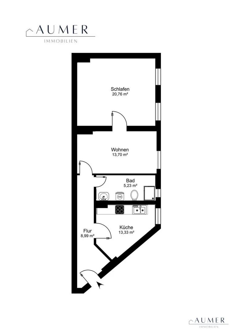
  • 62,07 m²

    Wohnfläche (ca.)
  • 2

    Zimmer
  • 1900

    Baujahr
  • 1

    Schlafzimmer

Preise & Kosten

Standort

10115 Berlin

Preise
  • Kaufpreis 399.000 €
  • Hausgeld 190,53 €
Käuferprovision zzgl. USt.
3,57% inkl. MwSt. vom Kaufpreis

Dateien & Unterlagen

Energieausweis.pdf

Die Immobilie

Wohnung zum Kauf
  • Objekt-Nr 202529
  • Kategorie Standard
  • Etage 2
  • Anzahl Etagen 5
  • verfügbar ab Sofort Verfügbar
  • Modernisierungen 2023
Räume und Flure
  • Anzahl Badezimmer 1

Ausstattung

  • Provisionspflichtig
  • Abstellraum
  • gepflegt
  • Unterkellert: Ja
  • Bad mit: Wanne, Fenster
  • Küche: Einbauküche
  • Boden: Fliesen, Parkett
  • Heizungsart: Etagenheizung

Ihre Anfrage

Energieverbrauchsausweis

0255075100125150175200225250
102 kWh/(m²*a)
  • Endenergieverbrauch 102 kWh/(m²*a)
  • Wesentlicher Energieträger Erdgas leicht
  • Energieeffizienzklasse D
  • Gültig bis 29.12.2033
  • Energieausweis 2014
  • Energieausweis Ausstellungsdatum 2023-12-30